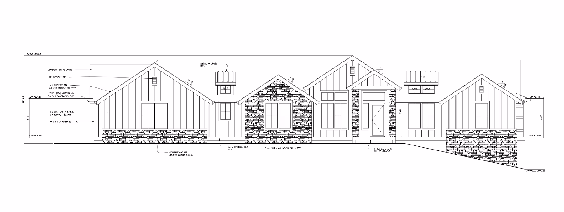
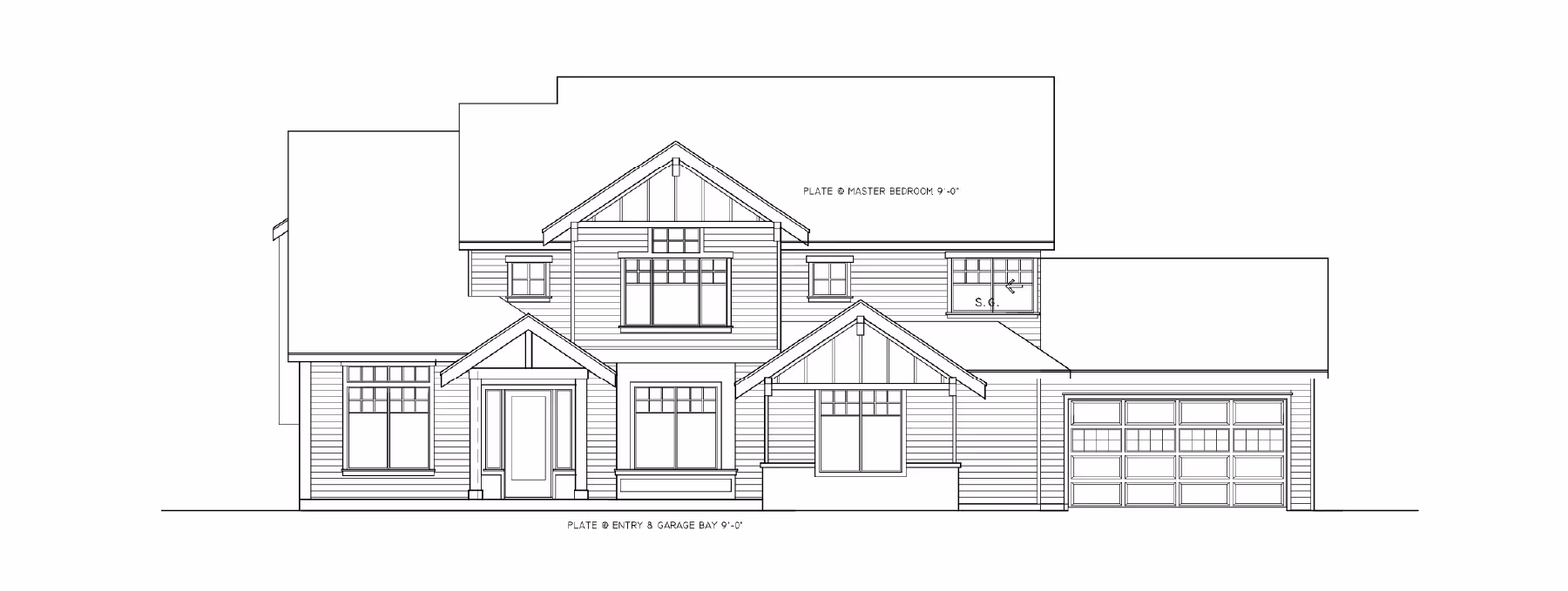
McCormick
Gig Harbor
A modern Northwest home with a bright, open main floor designed for everyday living, paired with an upper level that includes spacious bedrooms and flexible bonus space. With its clean rooflines, covered outdoor living, and thoughtfully planned layout, McCormick blends comfort, functionality, and timeless Craftsman detail.
Bedrooms
4
Bathrooms
4
Square Feet
3,536
More Upcoming Projects
Explore the homes currently in planning as we continue building for the future.
Paddock Farms Lot 3
Gig Harbor
Rosedale St
Gig Harbor
Contact Us For
Your Next Build
Have questions or ready to start your dream home? Get in touch, we’d love to hear from you.
Get In Touch.webp)





